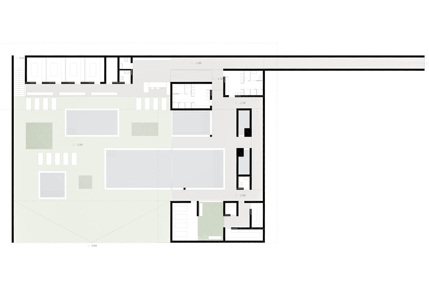
SPA 2018, Abruzzo, Progetto definitivo – Progetto per la realizzazione di una Spa ipogea tra gli ulivi